Espace propriétaire
fr

Votre recherche

Rabastens (81800)

Terrain à bâtir de 5360m²

369 000 €
Ref : 3855
Découvrir le bien

Contactez Magali LAURENT, IMMOJOY Fonsorbes de 9h à 21h tous les jours.


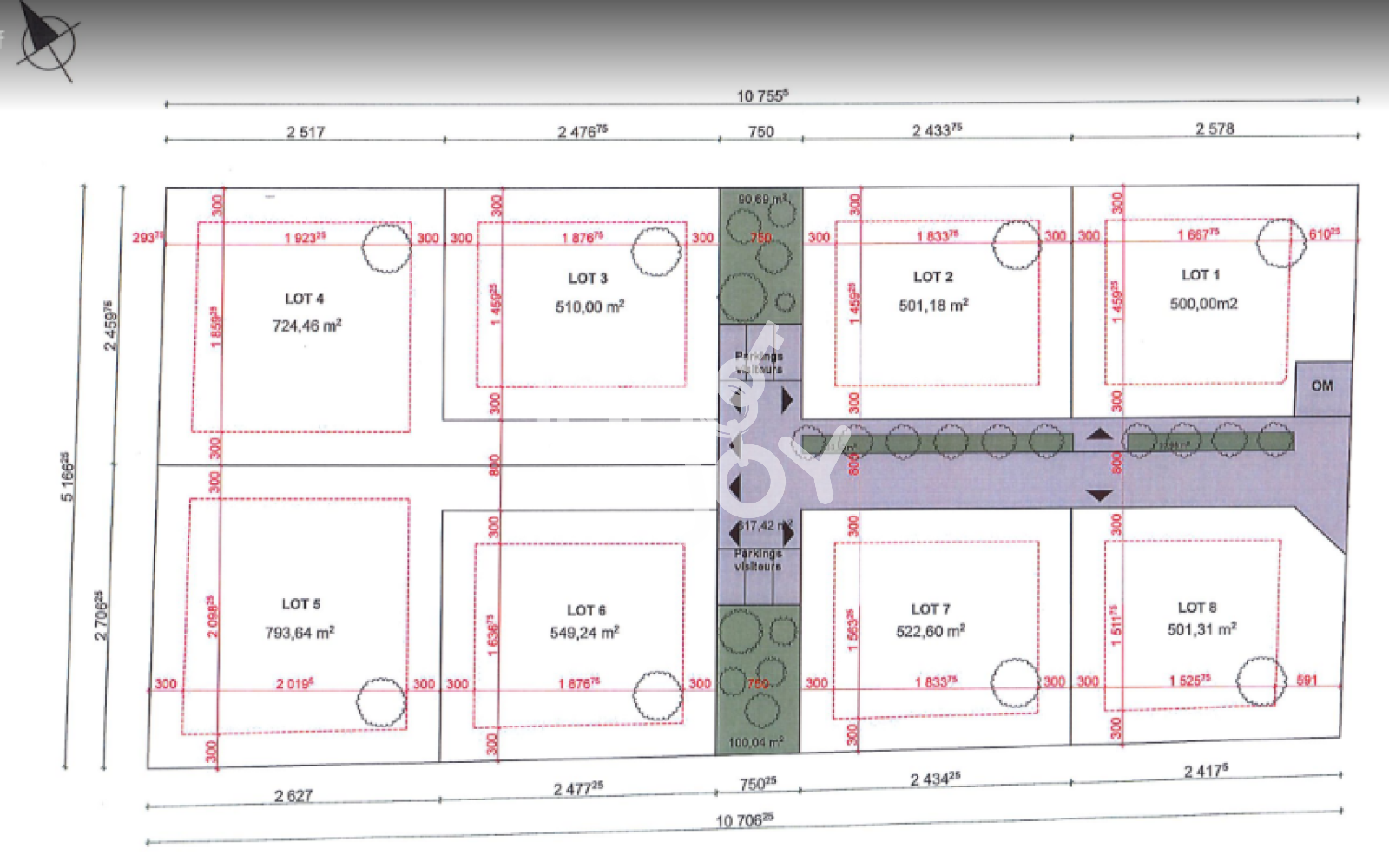
Je vous propose un terrain à bâtir de 5360m² pouvant être découpé en 8 lots de 500 à 793m².

Permis de construire accepté valable jusqu'au 6.9.2025, demande de permis à relancer auprès des services de l'urbanisme à parir du 7.9.2025. Aucun travaux de voirie n'a été réalisé.

Parcelles cadastrales AR 17, 18, 19.

Contactez-moi pour de plus amples renseignements.

TRAD_ZEPHYR_Caracteristique TRAD_ZEPHYR_Valeurs
Code postal 81800
surface terrain 5 360 m²
TRAD_ZEPHYR_Caracteristique TRAD_ZEPHYR_Valeurs
Prix de vente 369 000 €
Les honoraires d'agence seront intégralement à la charge du vendeur  
Taxe foncière annuelle 80 €
Contacter pour ce bien
Négociateur
LAURENT Magali Négociatrice
Téléphone 0620777083

* Champ obligatoire

Les informations recueillies sur ce formulaire sont enregistrées dans un fichier informatisé par La Boite Immo agissant comme Sous-traitant du traitement pour la gestion de la clientèle/prospects de l'Agence / du Réseau qui reste Responsable du Traitement de vos Données personnelles.
La base légale du traitement repose sur l’intérêt légitime de l'Agence / du Réseau.
Elles sont conservées jusqu'à demande de suppression et sont destinées à l'Agence / au Réseau.
Conformément à la loi « informatique et libertés », vous pouvez exercer votre droit d'accès aux données vous concernant et les faire rectifier en contactant l'Agence / le Réseau.
Si vous estimez, après avoir contacté l'Agence / le Réseau, que vos droits « Informatique et Libertés » ne sont pas respectés, vous pouvez adresser une réclamation à la CNIL.
Nous vous informons de l’existence de la liste d'opposition au démarchage téléphonique « Bloctel », sur laquelle vous pouvez vous inscrire ici : https://www.bloctel.gouv.fr 
Dans le cadre de la protection des Données personnelles, nous vous invitons à ne pas inscrire de Données sensibles dans le champ de saisie libre
Ce site est protégé par reCAPTCHA, les Politiques de Confidentialité et les Conditions d'Utilisation de Google s'appliquent.

Découvrir nos outils